

2014 年,Arthur、Tom、Eri 三位分别身处香港、上海、伦敦三地的兄弟/好友正式成立了 YETI OUT(注:Yeti 是一种传说中生活在雪山里,介乎于人与猿之间的动物),凭借出色的派对策划能力、创意以及人脉优势,他们成为了近年最瞩目的派对推手之一,曾把 FKJ、Venus X、Benji B、Charity SsB、Ciesay 和 Soulz 等人带上派对现场。
音乐与时尚的关系千丝万缕,从音乐出发的 YETI OUT 亦因为派对而不断与拥有相应音乐品味的街头/时尚品牌产生了连接。为 PATTA 旗下音乐平台 Soundsystem 策划派对,并一同打造「亲友限定」合作 Tee;联手 PLEASURES 以 90 年代锐舞文化为灵感推出联名系列;登陆 Bodega 旗下电台 Pirate Radio、NTS Radio、VERDY HARAJUKU DAY 等。

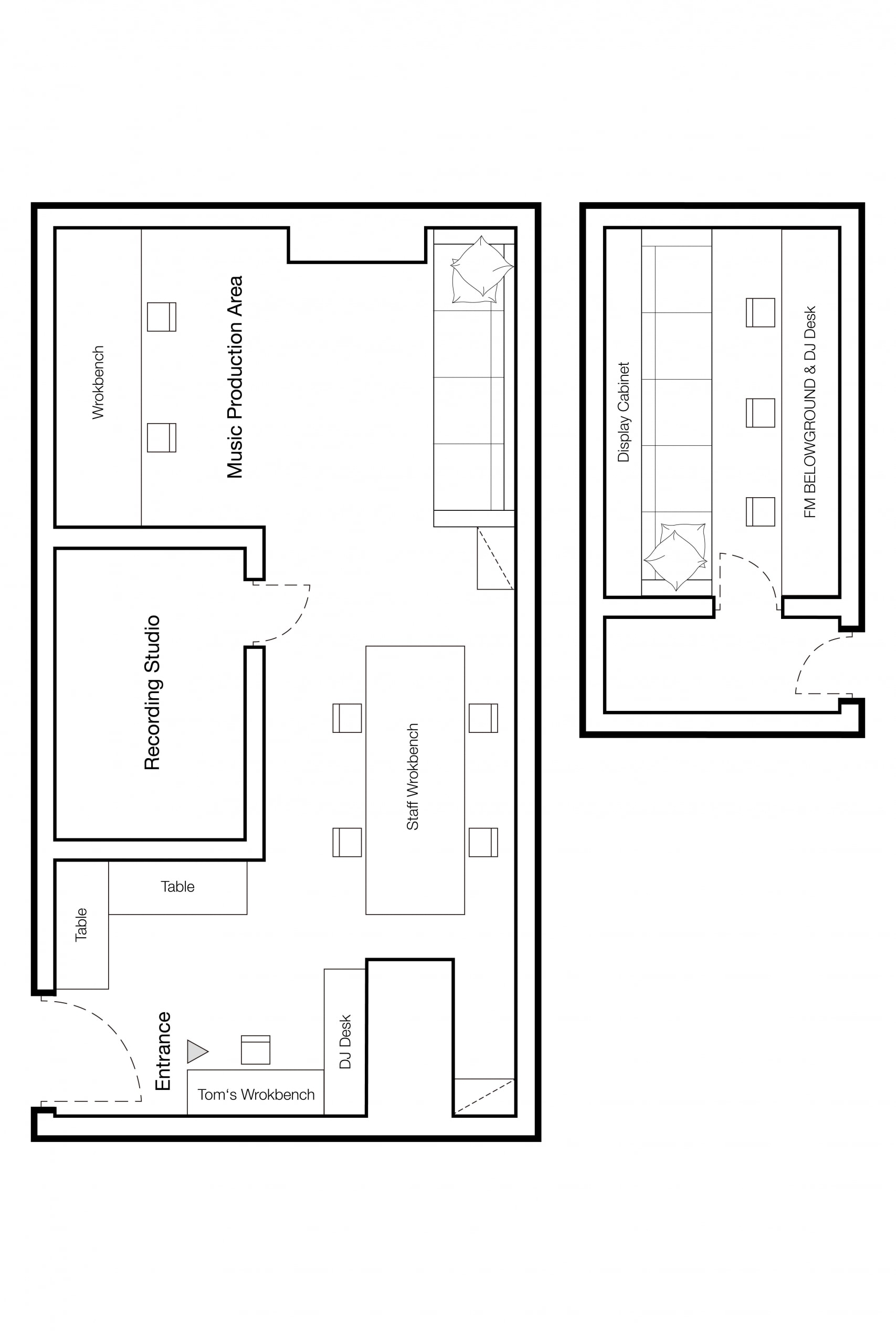
2020 年,YETI OUT 位于上海与香港的据点都发生了变化。本月的 Studio Visits,HYPEBEAST 分别走进了 YETI OUT 上海、香港两地的工作室,除了一窥这个派对团体的工作环境外,也进一步了解了 YETI OUT 的团队构成、工作的范围与内容、多年来举办派对背后的故事等。

Space Information
Shanghai Studio(左) / Hong Kong Studio(右)
坐标:黄浦区,上海 / 中西区,香港
用途:常规工作、直播、录音、音乐制作、播客、采访、现场会议
面积:60 ㎡ / 6 ㎡
时间:2020 年 4 月起 / 2020 年 12 月起
装修费用:约 60,000 Rmb / 不便透露
租金:12,000 Rmb / 不便透露
香港工作室在 2020 年 12 月 1 日正式落成,位于中环置地广场内,这个大小仅有 6 平方米的空间被 Arthur 称为「SOUND BOX」:「因为我们装了一个漂亮的扬声器,同时还能做到隔音。虽然它的面积不大,但作为一个可以用作录制采访、混音、播客以及现场会议的工作室来说,已经足够完美。为了实现以上这些,我们做了大量的工作。」「SOUND BOX」由曾为 Supreme、Stussy、Sonos 以及其他公司提供建筑项目设计支持的伦敦设计事务所 Brinkworth Agency 内工作的朋友设计完成。




上海工作室在新天地附近,Tom 与合伙人 Fader One 一同从静安区的艺术画廊搬到了现在位于 14 楼的商业大楼空间内,面积 60 平方米,设有 Production Board、调音和母带处理台、人声录音间、具有直播功能的 DJ 设备以及供团队工作的常规区域。「以前的工作室很适合举办派对活动,就是有点太大了。现在我们搬到了新天地,无论是工作还是日常生活,都更便利了一些。关于工作室内部的所有设计都是专门为了达到录制的最佳效果而建造的,从吸音墙垫的特定摆放位置,到调音台与人声室的流畅视听连接等。因为我们位于 14 楼,可以俯瞰上海新天地,所以我们在其他的设计方面一切从简,进而能让大量的阳光能照进我们的工作区域,保持活力。」




和我们说说 Yeti Out 的由来,以及如今的团队成员有多少人吧?
Arthur:我在英国读大学的时候,正值 HYPEMACHNIE 博客音乐时代,当时就与 Eri 创立了 Yeti Out 的前身,一个名为「Yeti in the Basement.com」的博客。后来,我们开始在伦敦举办派对,在 Club Culture 中切磋,我们在那时候学到的东西被带到了后来工作的其他领域里面。
YETI OUT 的创始成员有我、Eri Yeti 和 Tom Yeti,目前我们的核心团队大约有 8 人左右,但如果算上包括 DJ 以及其他成员,可能有 15 个人左右吧,我们是一个在不断增长的队伍。 我们的团队分布在 3 个不同的城市,但多谢了卫星的功劳,所以我们的团队即使时间跨度有大概 5 个时区,仍然能使用像 Slack、Wechat 和 Zoom 这样的 app 来保持联系,并推进工作。
YETI OUT 工作范围有哪些?介绍一下两个工作室的主要用途。
Tom:从根源上来说,我们是一个由音乐人组成的创意集体,每天只做我们喜欢的事情。但这么多年来,YETI OUT 已经从 2010 年的一个音乐博客发展成为了囊括派对策划、Booking Agency、服饰发售、唱片发行、艺人管理、为品牌提供咨询服务以及设计工作室在内的一个整体,同时还保持了独立性。
在上海,我们的工作室管理着多个项目和 IP 。总的来说,YETI OUT 更专注于亚文化,Red 8 Records 更关注中国正在崛起的说唱人才,AUXX 是我们的创意代理部门,为品牌提供创意咨询。这种模式能让我们的团队在工作时联系更为紧密,保持一致和高效,同时在财务上实现可持续。但当然,我们在做一些天马行空的创意、做我们自己喜欢的事情时,也会拥有一定的现实压力。
Arthur:「SOUND BOX」也是我们电台 FM BELOWGROUND 的所在地,由 YETI OUT 提供 24 小时全天播报,包括本土独立艺术家以及一些海外亲友的节目。我们是青年运动的倒映,在昼夜不息的城市中定义创意文化。




在不同城市的经历,对你们音乐方面有什么影响?
Tom:音乐方面对我最大影响的可能是早期在英国读书的时候,发现了像 Dubstep、UK Funky、Jungle、Drum & Bass 这样类型的音乐,去参加或「自制」派对,从某人的地下室、随机的仓库到不知名的森林……20 岁的时候,我到曼彻斯特的 Warehouse Project 等音乐节上工作,看到了最多样化的音乐,如一些原本为了音乐节设置的舞台,移到了火车站的月台举办等,那一夜真的让我大开眼界,同时也认识了好一些现在已成为「头条常客」的人物(现在也是我们的朋友)。在当时,我认为是真正意义上的疯狂,回想起来那的确是一次圆满的旅程。
Arthur:每个城市都有它自己的本土语境,每个城市都是如此独特,也拥有着自己的社区,在某种程度上也受到了全球其他地区的影响而启发。我们很幸运地能与各种志同道合的团队联系起来,做我们喜欢的事情,我们的目标是通过音乐以及我们认为有价值的创意项目来连接东西方。这个世界如此快速的发展,我们也会随之发展。
Tom 在上海这么多年,作为亲历者与参与者,你观察到的上海音乐场景有些什么变化?
Tom:现在的上海是一个每周都在变化的城市,昼夜不眠。现在有比以前更多的 DJ、艺术家、派对团队和 Club ,看到一些些「Middle-ground」俱乐部的崛起也很有趣,比如 44KW 和 Potent,它们试图同时满足商业和地下观众。
2013 年我来到上海,当时是为上海时装周的一个公关项目工作而来,后来在 2014 年也找到了一份工作,但不久后我就辞职了,专注于 YETI OUT 和我自己的项目。我仍然很怀念那些在 The Shelter 汗流浃背的夜晚,在黑暗中彻夜摇摆。对于一个似乎每四个月 Club 就会更新换代的城市来说,拥有近十年历史的 The Shelter 对这个城市的音乐影响之深远无以言喻。




你们工作的一天是怎么开启的?
Tom:我一般不在工作室就是在去工作室的路上,但其实我们的很多会议也是在工作室之外进行的。我通常上午在家里开电话会议,下午在工作室和我们的团队讨论具体的项目,有时还要和香港的 Arthur 、伦敦的 Erisen 进行全球同步,我一般都待得比较晚,外卖叫得也很多(哈哈)。
Arthur:由于我们的艺人来自不同语境和流派,甚至不同时区,因此我们会按照一个我们制定的时间表进行。但偶尔也做一些节目和唱片的突击发布。
举办一场音乐派对,你们认为最重要的是什么?
Tom:我们总说,一个好的派对需要的三个最重要的东西是:一,一个好的音响系统;二,多元开放的人群 ,三,Bartender 足够大方。如果有了这些必要的东西,其他东西我们都可以搞定,哈哈。
在疫情之前,我们为许多国际艺人代理了他们在亚洲的演出,负责他们巡演的管理。从东京到孟买,我们在亚洲各地区都拥有坚实的场地合作伙伴和音乐社区网络,我们的巡演通常覆盖 5 ~ 8 个城市,上海和香港总会是其中的一站,因为这是我们的根据地。
和我们说说两个工作室内的器材吧。
Tom:我的合伙人 Fader One 是我们 Production Board 背后的得力干将,他的设备包括 Universal Audio Apollo 8 声卡、Neve 1073 Dpa、Ableton Push 2 和 Neumann U87 麦克风,都是用于高保真音质录制的利器。我们的 DJ 台配备了 CDJ 2000 和 DJM 900 混音台,同时还有用于直播的 ATEM Mini Pro 切换器和 GoPro Hero 7。除此之外,最重要的设备是蜡烛,我们会在工作室周围摆上点好的蜡烛,氛围感十足!
Arthur:我们的混音台配备了 CDJ 3000、DJM 900 Nexus,都是这个行业的最新标配,同时也有很棒的 JBS 扬声器和监听器,以及一张调音台。




在 NTS Radio 上的频道是如何开启的?你们现在每月的 Show 是如何策划的?
Arthur:我们和 NTS Radio 的工作人员是认识很久的朋友了,他们也是在 2010 年 Yeti in the Basement 博客开始的同时起家的。YETI OUT 也曾在 Radar Radio 驻场,但 RR 关闭后,我们就搬到了 NTS Radio 上。我们在 NTS Radio 上的节目是基于我们厂牌 Silk Road Sound 的成员及其人际网上建立起来的。每个月我们会通过与欧亚不同艺术家和创意人的交流以及联系,来制定独一无二的 Show。
你们旗下的厂牌 Silk Road Sounds 是如何开始的?YETI OUT 所强调的「亚洲根基」是如何体现的?
Arthur:Silk Road Sounds 是我们的唱片厂牌,我们专注于为旗下艺人、圈子里的朋友制作音乐。这个名字既有形象的蕴意也有字面的意思,因为我们都是在路上了遇到有才华的朋友,其中一些人也像我们一样经历过不同的文化交融,所以我们就自然而然地对使用了这个名字。
YETI Crew 的成员很多都是亚洲人和其他侨民的混合体,同样厂牌里的艺人也都是多元的,他们来自不止一种文化,并在他们的音乐中表现了出来,这也是我们想要庆祝的东西。很幸运,我们在旅程中遇到了这么多人才,我们希望通过派对,以及现在的厂牌,尽力推广这些艺人。
Tom:YETI OUT 的大家庭每年都在不断壮大,我们同样很高兴能与一些艺人朋友进行更紧密的合作,他们包括上海本地歌手 Charity SsB、香港四人独立乐团 N.Y.P.D 南洋派对和伦敦制作人 DJ Droopy 。




YETI OUT 与街头/时尚品牌的合作是如何开启的?
Tom:每次联名的背后都有自己的故事,但总的来说,他们都是我们多年的好朋友,在音乐、旅行和长夜跳舞这方面有着相似的激情。像 YETI OUT x COACH 「RAVE2RUNWAY」 Leather Shoe 就是我为双方合作的胶囊系列设计的第一个鞋款,灵感来源于我和 Coach 的创意总监 Stuart Vevers 在曼彻斯特经常参加的 Acid House 派对的经历。
可以透露一下,工作室内最近完成了什么工作吗?
庞凡:在 Fader One 帮助下,Charity SsB 的最后一首单曲《ZuoAi 》已经录制完成。当初,Charity 带着小样来到录音室时,自己就已经有了一个很好的概念,而当我们最终完成后,整首曲子听起来非常清脆且纯净。我相信 Club 也会爱上它的!
另外,我们目前正在与 DOE 设计一个夏季胶囊系列,我很想与大家分享,但现在还不能说;同时我们还在录制下一个 Rinse FM Radio Show,有一位特别的嘉宾,但我同样也暂时不能说,哈哈。




以下是 YETI OUT 工作室内的收藏及背后故事:
FOUR TET VS MADVILLAIN(STONES THROW RECORDS)
Tom:「这张黑胶唱片是我访问 Stones Throw 唱片公司在洛杉矶的工作室时,该公司的品牌经理 Kota 送的礼物。作为 Stones Throw 的长期粉丝,这张唱片对我意义重大,里面是英国制作人 Four Tet 对 Madvillain 的一系列混音作品,今年早些时候,MF Doom 去世,我把这张黑胶唱片听了很多遍。」

ARTIST PASS – IT’S THE SHIP FESTIVAL
Tom:「这是 2018 年 YETI OUT 在『It’s The Ship Festival』的舞台上的艺人通行证。我们和 Soulection 一起策划了自己的舞台,最终在船上狂欢了 4 天,从新加坡到泰国普吉岛,然后回到上海,简直就像是一部电影一样。」

YETI OUT presents IVAN SMAGGHE @ THE SHELTER Flyer
Tom:「这张传单是为了我们在上海 The Shelter(R.I.P)举办的第一个派对准备的,派对上有 Disco 和 Electro Pop 的传奇人物 Ivan Smagghe。他表演了 4 个小时,结束后一直到早上 7 点,我们还一起去吃了兰州拉面做早餐。」

YETI OUT presents FKJ @ ARKHAM Flyer
Tom:「FKJ 是我认识的最有才华的音乐家之一,也是我认识很久的朋友了。2017 年,我们第三次把 FKJ 带到了中国做巡演,为此制作了这张「 – 20 RMB」海报,也是入场观众提供的优惠券。

YETI OUT x CAKESHOP: ART BASEL WEEKENDER PARTY
Tom:「疫情之前,每年香港的巴塞尔艺术展期间我们都会与来自首尔的 Cakeshop Crew 合作举办一系列的派对和视觉装置。2017 年是令人很难忘的一次,因为我们举办了两晚的背靠背派对,阵容横跨墨西哥城的 N.A.A.F.I 团队、Stussy Tribe的 DJ Soulscape 和伦敦 Grime 的传奇人物 Sir Spyro。」

YETI OUT TRIPLE HAPPINESS FLYER
Tom:为庆祝我们在上海的三周年系列派对,我们重新设计了著名的红双喜烟盒,用三个 「喜」来象征三年。每包烟都有一个独特的客人邀请码,用于我们在 Elevator、Arkham 和 Le Baron 的每场派对。

APPLE MACBOOK PRO & STICKERS
Tom:「这是我的生活必需品,没有它我就无法工作。这台 MACBOOK PRO 虽然已经是很老的型号了,但因为上面的贴纸我仍然在使用。我有很多很多的贴纸收藏,来自不同的音乐团队、唱片公司、我们在不同国家或城市巡演时遇到的艺人。我想贴纸在我们的世界里是一种『名片』。」


继续阅读
More ▾




















制片人
Joseph Luk/Ben Cheung编辑
Ben Cheung译者
Dio摄影师
Kd、Fionn